“Đòn bẩy” hướng tới mục tiêu phát triển công nghệ cao
| Công nghiệp công nghệ số trở thành ngành kinh tế đóng góp lớn cho đất nước |
Những dự định còn dang dở
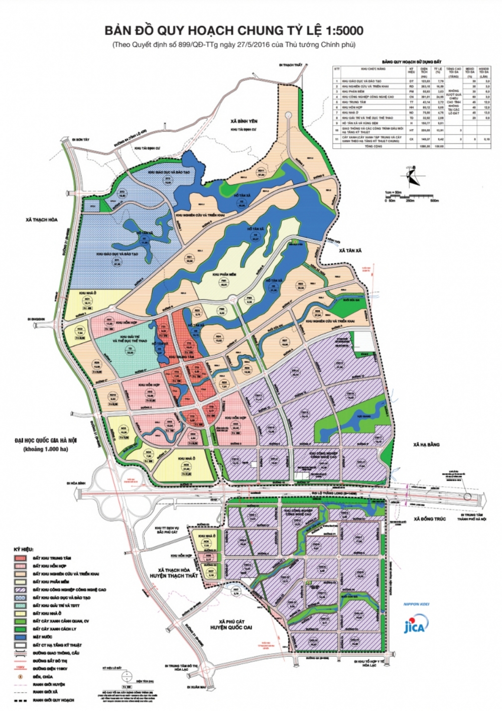
Ông Lê Thanh Sơn, Phó trưởng Ban Quản lý Khu Công nghệ cao Hòa Lạc cho biết, Quy hoạch tổng thể Khu Công nghệ cao Hòa Lạc được phê duyệt tại Quyết định số 198/1998/QĐ-TTg ngày 12/10/1998 với quy mô diện tích 1.650ha và đã được điều chỉnh 2 lần (lần 1 năm 2008 tại Quyết định số 621/QĐ-TTg ngày 23/5/2008, lần 2 năm 2016 tại Quyết định số 899/QĐ-TTg ngày 27/5/2016).
![]() |
| Quy hoạch tổng thể Khu Công nghệ cao Hòa Lạc |
Sau khi điều chỉnh quy hoạch, diện tích toàn Khu Công nghệ cao Hòa Lạc là 1.586ha, nằm trên địa bàn 2 huyện Thạch Thất và Quốc Oai với quy mô dân số dự báo đến năm 2030 là 229.000 người, trong đó dân số thường trú khoảng 99.300 người.
Theo đồ án điều chỉnh quy hoạch chung xây dựng được Thủ tướng Chính phủ phê duyệt tại Quyết định số 899/QĐ-TTg ngày 27/5/2016, trong Khu Công nghệ cao Hòa Lạc được bố trí hạ tầng xã hội và nhà ở trong Khu Nhà ở, Khu Trung tâm, Khu Hỗn hợp để phục vụ dân số thường trú là 99.300 người.
Hiện nay, trong Khu Công nghệ cao Hòa Lạc có khoảng 24.000 chuyên gia, cán bộ, công nhân viên, học sinh, sinh viên đang học tập và làm việc. Hiện có một số dự án hạ tầng xã hội (trường học, nhà hàng, cửa hàng tiện ích,...) đi vào hoạt động, một số dự án dịch vụ lưu trú và thương mại đang trong quá trình xây dựng.
![]() |
| Khu Công nghệ cao Hòa Lạc có khoảng 24.000 chuyên gia, cán bộ, công nhân viên, học sinh, sinh viên đang học tập và làm việc |
Phó trưởng Ban Quản lý Khu Công nghệ cao Hòa Lạc cung cấp thêm rằng, đến nay, Khu Công nghệ cao Hòa Lạc có 109 dự án đầu tư còn hiệu lực (bao gồm 95 dự án trong nước và 14 dự án đầu tư nước ngoài), với tổng vốn đầu tư đăng ký khoảng 115.500 tỷ đồng.
Trong đó, có 74 dự án đầu tư vào phát triển công nghệ, sản xuất sản phẩm công nghệ cao: 33 dự án trong lĩnh vực công nghệ thông tin và điện tử viễn thông; 19 dự án trong lĩnh vực tự động hóa; 13 dự án trong lĩnh vực vật liệu mới; 9 dự án trong lĩnh vực công nghệ sinh học.
Đáng chú ý, tại Khu Công nghệ cao Hòa Lạc, các nhà đầu tư đã nghiên cứu, chuyển giao, làm chủ và phát triển các công nghệ cao thuộc 55 nhóm công nghệ cao, 31 nhóm sản phẩm công nghệ cao thuộc Danh mục công nghệ cao được ưu tiên đầu tư phát triển và sản phẩm công nghệ cao được khuyến khích phát triển. Các dự án đã đi vào hoạt động đang góp phần tạo việc làm cho khoảng 14.500 người lao động có tay nghề, doanh thu năm 2023 đạt khoảng 30.000 tỷ đồng.
Trong số các dự án đầu tư ở Khu Công nghệ cao Hòa Lạc, có một số công ty, tập đoàn trong nước hàng đầu trong lĩnh vực công nghệ thông tin và truyền thông như tập đoàn FPT, Viettel, CMC,… đã hình thành nên được chuỗi liên kết giữa đào tạo, nghiên cứu và sản xuất công nghệ cao trong lĩnh vực phát triển phần mềm, trí tuệ thông minh; sản xuất một số sản phẩm công nghệ cao có giá trị gia tăng cao, thay thế hàng nhập khẩu, có tính dẫn dắt, lan tỏa tham gia chuỗi cung ứng toàn cầu tiêu biểu như rada cảnh giới biển ứng dụng công nghệ mạng thế hệ 5G (Viettel), cấu kiện động cơ máy bay, nanocucurmin,…
![]() |
| Sản xuất và lắp ráp linh kiện điện tử tại Công ty cổ phần Công nghệ công nghiệp Bưu chính viễn thông Việt Nam, Khu công nghệ cao Hòa Lạc, Hà Nội. |
Về đào tạo, thu hút nguồn nhân lực chất lượng cao, Khu Công nghệ cao Hòa Lạc đã thu hút được một số trường đại học lớn (Đại học FPT, Đại học KH&CN Hà Nội, một hợp phần của Đại học Việt-Nhật, Đại học Văn Lang).
Hiện tại đã có khoảng 10.000 nhân lực công nghệ cao đang làm việc trong Khu Công nghệ cao Hòa Lạc, trong đó có hơn 5.000 nhân lực công nghệ thông tin (chiếm khoảng 50%). Đặc biệt, Khu Công nghệ cao Hòa Lạc đã thu hút các dự án sản xuất các sản phẩm công nghệ cao có giá trị gia tăng cao thay thế hàng nhập khẩu và tham gia thị trường thế giới. Tiêu biểu là các dự án của Tập đoàn Công nghiệp Viễn thông Quân đội Viettel; Công ty Cổ phần FPT; Tập đoàn VNPT; Tập đoàn Nidec, Nhật Bản; Tập đoàn Hanwha AeroSpaces, Hàn Quốc.
Như vậy, đến nay, Khu Công nghệ cao Hòa Lạc đã có hạ tầng kỹ thuật tương đối hiện đại, đồng bộ, đã thiết lập môi trường chính sách đặc biệt và thu hút được một số tập đoàn công nghệ hàng đầu trong nước và thế giới đầu tư các công nghệ cao, công nghệ tiên tiến.
Tuy nhiên, vẫn còn có một số hạn chế ảnh hưởng đến hoạt động của các nhà đầu tư như công tác GPMB vẫn chưa được hoàn thành tác động đến tình hình an ninh trật tự cũng như cảnh quan môi trường, Ban Quản lý chưa xác định và ban hành được mức thu tiền bồi thường GPMB tại Khu Công nghệ cao Hòa Lạc để các nhà đầu tư nộp tiền, hoàn thành nghĩa vụ tài chính đối với Nhà nước và được cấp Giấy Chứng nhận quyền sử dụng đất
Tạo “hành lang” phát triển công nghệ cao
Sự ra đời và đi vào cuộc sống của Luật Thủ đô (sửa đổi) đã được giới khoa học đón nhận bằng thái độ tích cực. Không ít các học giả đánh giá, Bộ luật này sẽ góp động lực quan trọng để Hà Nội phát triển bứt phá trong lĩnh vực công nghệ, chuyển đổi số.
Tiến sĩ Nguyễn Hoàng Hiệp, Phó Viện trưởng Viện Nghiên cứu Tin học và Kinh tế ứng dụng cho rằng, Luật Thủ đô (sửa đổi) rất quan trọng với Hà Nội, giúp thành phố xây dựng cơ chế để thúc đẩy chuyển đổi số của Hà Nội nhanh hơn. Để hướng tới mục tiêu đó, phải xác định chuyển đổi số là lĩnh vực cần đẩy mạnh trong mọi mặt kinh tế - xã hội. Đây cũng là tiền đề quan trọng để Hà Nội thúc đẩy quá trình xây dựng Thủ đô thành thành phố thông minh trong thời gian tới.
![]() |
| Tiến sĩ Nguyễn Hoàng Hiệp, Phó Viện trưởng Viện Nghiên cứu Tin học và Kinh tế chia sẻ về những kỳ vọng đối với Luật Thủ đô (sửa đổi). |
Cùng chung nhận định, Tiến sĩ Lê Quốc Phương, nguyên Phó Giám đốc Trung tâm Thông tin công nghiệp và thương mại (Bộ Công Thương) cho rằng Luật Thủ đô số 39/2024/QH15 sửa đổi đã được Quốc hội khóa XV, kỳ họp thứ 7 thông qua ngày 28/6/2024 phân quyền cho UBND thành phố Hà Nội được quyết định thành lập, điều chỉnh, mở rộng ranh giới khu công nghệ cao trên địa bàn thành phố là điều kiện rất tốt, mở ra kỷ nguyên mới cho khu công nghệ cao ở Hà Nội. Đồng thời, khắc phục được những khó khăn, vướng mắc mà các khu công nghệ cao đang gặp phải.
Với nội dung này, bà Phan Thị My, Quyền Trưởng ban, Ban Quản lý Khu CNC Hòa Lạc cho biết, Luật Thủ đô số 39/2024/QH15 sửa đổi đã được Quốc hội khóa XV, kỳ họp thứ 7 thông qua ngày 28/6/2024 là hành lang pháp lý quan trọng cho sự phát triển của Khu Công nghệ cao Hòa Lạc trong thời gian tới.
![]() |
| Khu Công nghệ cao Hòa Lạc có 109 dự án đầu tư còn hiệu lực (bao gồm 95 dự án trong nước và 14 dự án đầu tư nước ngoài), với tổng vốn đầu tư đăng ký khoảng 115.500 tỷ đồng. |
Theo đó, Điều 24 đã xác định Khu công nghệ cao Hòa Lạc là khu vực nghiên cứu, phát triển, thử nghiệm, ứng dụng công nghệ cao, đào tạo nhân lực công nghệ cao, sản xuất sản phẩm công nghệ cao và đổi mới sáng tạo trọng điểm của đất nước và Thủ đô; là điểm thử nghiệm, thí điểm về cơ chế, chính sách cho việc phát triển công nghệ cao và các khu công nghệ cao trong cả nước, hướng tới trở thành một thành phố khoa học hiện đại trong tương lai.
Quyền Trưởng ban, Ban Quản lý Khu công nghệ cao Hòa Lạc phấn khởi thông tin, để thực hiện được mục tiêu phát triển các khu công nghệ cao của Thành phố, trong đó trọng tâm là Khu Công nghệ cao Hòa Lạc, Luật Thủ đô (sửa đổi) đã quy định nhiều cơ chế, chính sách đặc thù vượt trội.
Cụ thể, Luật Thủ đô (sửa đổi) quy định về phân cấp ủy quyền mạnh mẽ cho Ban Quản lý để thực hiện cơ chế một cửa tại chỗ, từ đó giúp cho nhà đầu tư thực hiện các thủ tục hành chính một cách nhanh nhất, đơn giản nhất.
![]() |
| Luật Thủ đô (sửa đổi) đã quy định nhiều cơ chế, chính sách đặc thù vượt trội đối với phát triển Khu công nghệ cao |
Đồng thời, Dự án đầu tư và hoạt động tại khu công nghệ cao của thành phố được áp dụng các cơ chế, chính sách ưu đãi, hỗ trợ đầu tư cao nhất theo quy định của pháp luật. Luật Thủ đô (sửa đổi) cũng giao HĐND thành phố quy định cơ chế, chính sách, biện pháp ưu đãi, hỗ trợ để thu hút nguồn nhân lực công nghệ cao làm việc tại khu công nghệ cao và thúc đẩy hoạt động đổi mới sáng tạo tại khu công nghệ cao; phát triển nhà ở cho người làm việc trong khu công nghệ cao.
Ông Trần Đắc Trung, Phó Ban quản lý Khu công nghệ cao Hòa Lạc thông tin, đơn vị đã triển khai lấy ý kiến góp ý dự thảo các Nghị quyết triển khai Luật Thủ đô 2024 và xây dựng dự thảo quy định chính sách ưu đãi thu hút nguồn nhân lực công nghệ cao và thúc đẩy hoạt động đổi mới sáng tạo tại Khu Công nghệ cao Hòa Lạc.
Dự kiến các nghị quyết này sẽ được trình HĐND TP Hà Nội thông qua tại kỳ họp tháng 5/2025. Các cơ chế vượt trội được coi là cơ sở giúp Khu công nghệ cao Hòa Lạc thu hút những dự án đầu tư mới có quy mô lớn, sử dụng công nghệ mới và tiên tiến hơn.
Các công nghệ được thu hút đầu tư phải có tiềm năng dẫn dắt và nâng cao giá trị trong chuỗi sản xuất quốc gia và toàn cầu, từng bước đưa Khu công nghệ cao Hòa Lạc trở thành trung tâm nghiên cứu và phát triển, tiếp nhận chuyển giao, đổi mới và sáng tạo công nghệ hàng đầu cả nước, là cầu nối về công nghệ giữa Việt Nam và thế giới.
Lãnh đạo Khu công nghệ cao Hòa Lạc cho biết, mục tiêu sau năm 2030, đơn vị trở thành thành phố khoa học và công nghệ và đổi mới sáng tạo sinh thái và thông minh, có đầy đủ và toàn diện các chức năng; tập trung đầu tư và phát triển theo chiều sâu, dần chuyển đổi các hoạt động sản xuất công nghiệp sang hoạt động nghiên cứu và phát triển, sản xuất thử nghiệm, đào tạo, ươm tạo.








